Why Our Certifications Matter to You
Working with a licensed and certified contractor is your primary assurance for safety, quality, and strict compliance with local building codes. As deck builders, holding professional certifications means that we have been vetted by industry leaders to meet high standards in our craftsmanship. Our level of expertise ensures that your outdoor living space is always structurally sound and built to last. We appreciate that building a new deck is an important investment, and it is our priority to protect said investment.
These credentials are a bridge to the safety of your home. We hold a status of certified installers with manufacturers who guarantee long-term durability through their design and comprehensive warranties. By choosing a certified partner like us at Royal Deck, you have peace of mind that all material used on your deck is backed by both the manufacturer’s promise and our proven track record of sophisticated deck building.
Premium Manufacturer Certifications
The Experts Your Neighbors Trust
Our Warranty Coverage
The Royal Deck Warranty is designed to be transparent. By following our recommended maintenance and care guidelines, you can ensure that your project remains fully protected under our coverage.
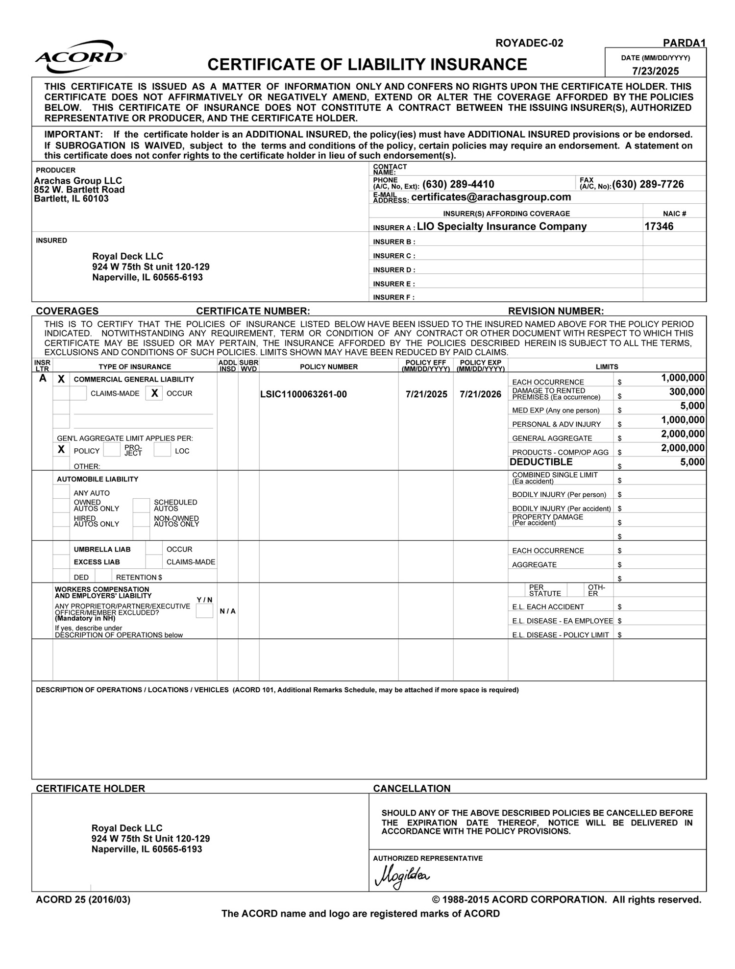
Fully Licensed & Insured for Your Protection
What is a COI? A Certificate of Insurance (COI) is a formal document that outlines our general liability and workers’ compensation coverage, ensuring that you are never held responsible for accidents or damages that might occur during the construction process. It is proof that Royal Deck carries the necessary insurance to protect both our workers and your property.
Why this Matters to You: Hiring a contractor with a COI avoids putting your home at risk, and it protects the savings you make on your project. At Royal Deck, we maintain comprehensive coverage that meets, but also exceeds all requirements. We are always happy to provide a current copy of our COI upon request. We aim to give you the confidence that you are working with a team that is professional, responsible, and fully protected.






